[Marseille] Stade Orange Vélodrome (67.354)

Informations, photos et vidéos des stades de Ligue 1
Accueil de l'Euro 2016
Avatar de l’utilisateur
djstr1664
Hero Member
Hero Member
Messages : 678
Inscription : 30 oct. 2012, 17:53
Localisation : courthezon 84

Re: [Marseille] Stade Vélodrome (60,013>67,500)

Message non lu par djstr1664 »

Piou04 a écrit :Démolition en cours d'une deuxième dalles de station de montage des colis sur le parvis JB , elles seront toutes détruites au BRH vu qu'il y a aucun ferraillage pris dans le béton .C'est juste des dalles avec un béton souvent dosé à 300 kg !

Il en sera de même pour la grave à ciment après le départ de la BIG Mama vers d'autres cieux :wink2:
Image
merci au photographes , reporters , station de webcam , météorologue , grutier ... en fait au contributeurs en tout genre

Djstr on Facebook

Djstr on Mixcrate
Avatar de l’utilisateur
marseillevivi13
Hero Member
Hero Member
Messages : 974
Inscription : 08 nov. 2012, 15:32
Localisation : AIX EN PVCE
Contact :

Re: [Marseille] Stade Vélodrome (60,013>67,500)

Message non lu par marseillevivi13 »

Ils ont virer le contreventements a l'extrémité coté pelouse entre la radiale de faille et le premier colis simple coté JB/VS.

A noté aussi que tous les arceaux et passerelles encore dispo sur le parvis ont été rapproché de BM. Quid des escaliers d’accès a JB haut, bientôt avec la couverture qui va démarré on ne pourra plus suivre ce poste la, dommage.
Compte rendu de la visite du 11 juillet 2013 page 2420 !!!!

Photo de la dernière visite de chantier du 11-07-13 http://www.flickr.com/photos/stade-velo ... 605799684/
Avatar de l’utilisateur
Alde13
Jr. Member
Jr. Member
Messages : 81
Inscription : 17 mai 2013, 19:37

Re: [Marseille] Stade Vélodrome (60,013>67,500)

Message non lu par Alde13 »

J'avoue m'interroger sur cette utilité :hum:
Sastrou
Full Member
Full Member
Messages : 225
Inscription : 01 déc. 2012, 15:59
Localisation : Lyon .... :(

Re: [Marseille] Stade Vélodrome (60,013>67,500)

Message non lu par Sastrou »

Alde13 a écrit :J'avoue m'interroger sur cette utilité :hum:
avoir une plus grande marge de manoeuvre pour retirer les palés interne avec Big Mama ou une autre grue peut être :hum: ...

Question : que se passe-t-il derrière le virage sud ? quelle est cette pièce qui se trouve sur le camion près de la grue ?
Avatar de l’utilisateur
Alde13
Jr. Member
Jr. Member
Messages : 81
Inscription : 17 mai 2013, 19:37

Re: [Marseille] Stade Vélodrome (60,013>67,500)

Message non lu par Alde13 »

Un des chéneaux manquant
Avatar de l’utilisateur
marseillevivi13
Hero Member
Hero Member
Messages : 974
Inscription : 08 nov. 2012, 15:32
Localisation : AIX EN PVCE
Contact :

Re: [Marseille] Stade Vélodrome (60,013>67,500)

Message non lu par marseillevivi13 »

Des pompes a béton font leur apparition sur le parvis JB.
Sastrou a écrit :
Alde13 a écrit :J'avoue m'interroger sur cette utilité :hum:
avoir une plus grande marge de manoeuvre pour retirer les palés interne avec Big Mama ou une autre grue peut être :hum: ...
Ils ont su prouvé que pour toutes les autres tribunes ils savaient très bien passer entre les contreventements. De plus pour les retirés ils passent par la rangée précédente de contreventements.
Compte rendu de la visite du 11 juillet 2013 page 2420 !!!!

Photo de la dernière visite de chantier du 11-07-13 http://www.flickr.com/photos/stade-velo ... 605799684/
LAuvergnat
Full Member
Full Member
Messages : 125
Inscription : 14 févr. 2014, 14:55

Re: [Marseille] Stade Vélodrome (60,013>67,500)

Message non lu par LAuvergnat »

marseillevivi13 a écrit :Des pompes a béton font leur apparition sur le parvis JB.
Sastrou a écrit :
Alde13 a écrit :J'avoue m'interroger sur cette utilité :hum:
avoir une plus grande marge de manoeuvre pour retirer les palés interne avec Big Mama ou une autre grue peut être :hum: ...
Ils ont su prouvé que pour toutes les autres tribunes ils savaient très bien passer entre les contreventements. De plus pour les retirés ils passent par la rangée précédente de contreventements.
Une défaillance alors?
Marseillaisdepanam
Jr. Member
Jr. Member
Messages : 78
Inscription : 20 mai 2013, 19:27

Re: [Marseille] Stade Vélodrome (60,013>67,500)

Message non lu par Marseillaisdepanam »

Bonjour,question pour les pros je voudrais savoir si les panneaux acoustique sont mis ou vont etre mis ? Et comment? Verticalement entre chaque les de jupe ? Merci beaucoup. Et question par rapport au speaker car quand je regarde le march a la tele j'enten meme pas le speaker . Qyand je regarde par example aux parc des princes ou a grand stade de lille les speakers on les entends et ils mettent une ambiance enorme l'example ici c'est ((paris)) etc pourquoi au vel on enten pas cela? Pourquoi les supporters mette pas l'ambiance avec le spekaker j'espere m'avoir fait comprendre merci .
Avatar de l’utilisateur
marseillevivi13
Hero Member
Hero Member
Messages : 974
Inscription : 08 nov. 2012, 15:32
Localisation : AIX EN PVCE
Contact :

Re: [Marseille] Stade Vélodrome (60,013>67,500)

Message non lu par marseillevivi13 »

Le voila revenu
Compte rendu de la visite du 11 juillet 2013 page 2420 !!!!

Photo de la dernière visite de chantier du 11-07-13 http://www.flickr.com/photos/stade-velo ... 605799684/
Avatar de l’utilisateur
fougasse
Hero Member
Hero Member
Messages : 1203
Inscription : 06 janv. 2013, 23:46
Localisation : Pas-de-Calais (62126) à 11 heures de bus du Vél

Re: [Marseille] Stade Vélodrome (60,013>67,500)

Message non lu par fougasse »

Marseillaisdepanam a écrit :Bonjour,question pour les pros je voudrais savoir si les panneaux acoustique sont mis ou vont etre mis ? Et comment? Verticalement entre chaque les de jupe ? Merci beaucoup. Et question par rapport au speaker car quand je regarde le march a la tele j'enten meme pas le speaker . Qyand je regarde par example aux parc des princes ou a grand stade de lille les speakers on les entends et ils mettent une ambiance enorme l'example ici c'est ((paris)) etc pourquoi au vel on enten pas cela? Pourquoi les supporters mette pas l'ambiance avec le spekaker j'espere m'avoir fait comprendre merci .

Merci de te relire un minimum ! :ph34:

EDIT : encore 5 ou 6 contreventements :)
Dernière modification par fougasse le 25 mars 2014, 14:35, modifié 1 fois.
Pour un vrai débat sur l'arbitrage vidéo !
Avatar de l’utilisateur
waddle71
Moderator
Moderator
Messages : 3942
Inscription : 09 oct. 2010, 11:24
Localisation : MACON (71) trop loin du Vélodrome !!!

Re: [Marseille] Stade Vélodrome (60,013>67,500)

Message non lu par waddle71 »

Impressionnant le nombre de semi remorques qui sont passés ou passent encore sous nos yeux par le parvis Jean Bouin :ouaaaa:

Ca rembale, ça fait place nette :gooood:

Perso, je n'ai pas accès à la webcam sud. Est ce que qqu'un a vu si la grue mobile Lafont est en train de poser le dernier chéneau sud de la jupe JB ?
-------- Fiers d'être (supporter) marseillais --------- A jamais les premiers ------------
lemiron
Newbie
Newbie
Messages : 19
Inscription : 23 avr. 2013, 13:30

Re: [Marseille] Stade Vélodrome (60,013>67,500)

Message non lu par lemiron »

Dites, savez-vous à quoi servent les deux camions verts et blancs devant big mama ?
Peut-être servent-ils à arroser le sol du chantier pour éviter la poussière ?
Avatar de l’utilisateur
fougasse
Hero Member
Hero Member
Messages : 1203
Inscription : 06 janv. 2013, 23:46
Localisation : Pas-de-Calais (62126) à 11 heures de bus du Vél

Re: [Marseille] Stade Vélodrome (60,013>67,500)

Message non lu par fougasse »

waddle71 a écrit :Impressionnant le nombre de semi remorques qui sont passés ou passent encore sous nos yeux par le parvis Jean Bouin :ouaaaa:

Ca rembale, ça fait place nette :gooood:

Perso, je n'ai pas accès à la webcam sud. Est ce que qqu'un a vu si la grue mobile Lafont est en train de poser le dernier chéneau sud de la jupe JB ?
La pose vient de se terminer, il reste encore le dernier du virage sud, qui vient d'être attaché ;)
Dernière modification par fougasse le 25 mars 2014, 14:37, modifié 1 fois.
Pour un vrai débat sur l'arbitrage vidéo !
Avatar de l’utilisateur
Mercivelodrome2014
Hero Member
Hero Member
Messages : 1168
Inscription : 16 juin 2013, 16:39

Re: [Marseille] Stade Vélodrome (60,013>67,500)

Message non lu par Mercivelodrome2014 »

waddle71 a écrit :Impressionnant le nombre de semi remorques qui sont passés ou passent encore sous nos yeux par le parvis Jean Bouin :ouaaaa:

Ca rembale, ça fait place nette :gooood:

Perso, je n'ai pas accès à la webcam sud. Est ce que qqu'un a vu si la grue mobile Lafont est en train de poser le dernier chéneau sud de la jupe JB ?
En cours ... ils accochent le bébé.
Le système de levage lourd de la BM devenu inutile est envoyé sous d'autres cieux.
La même BM bossait à l'heure contrex de cette nuit : 2h00 du mat et deux arceaux en duplex.
Les palées de station de montage sont quasi toutes parties.

Et comme Fougasse me grille au poteau, je n'ai d'autre choix que de faire pénitence.
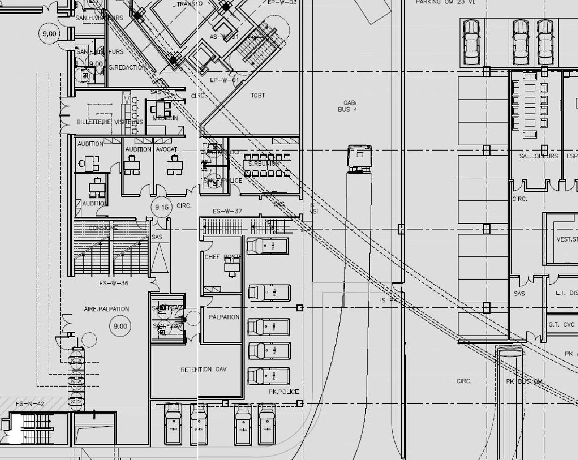
Ce sera donc avec un petit plan pour permettre de visualiser tout ce qu'ils banchent à l'angle du VN et jusqu'à la VSI.
Attention à la perspective qui fausse complètement la perception en matière de profondeur.
Après les latrines visiteurs, ils en sont vers la billetterie.
Juste après ce sera la Police ...
Vers nous, un énorme mur va séparer le côté droit de la VSI et le parking joueurs, ils commencent à préparer la tranchée par là.
Capture.JPG
Dernière modification par Mercivelodrome2014 le 25 mars 2014, 16:58, modifié 3 fois.
Vanitas vanitatum et omnes vanitas
Avatar de l’utilisateur
Mercivelodrome2014
Hero Member
Hero Member
Messages : 1168
Inscription : 16 juin 2013, 16:39

Re: [Marseille] Stade Vélodrome (60,013>67,500)

Message non lu par Mercivelodrome2014 »

Allez va, pour les beaux yeux de Waddle71 car il le vaut bien.
Sur 1/2 fond de jupe, c'est mimi tout plein pour l'avant-dernière.
Les autres tourneront le regard ;D

Sauf erreur de perspective, on devine un escalier roulant sur un camion, à qui le tour ? (En fait, la régie me glisse que non dans l'oreillette, dont acte Virgile :perfect: )
Capture.JPG
Dernière modification par Mercivelodrome2014 le 25 mars 2014, 15:31, modifié 3 fois.
Vanitas vanitatum et omnes vanitas
Répondre

Revenir à « Ligue 1 »