[Marseille] Stade Orange Vélodrome (67.354)

Informations, photos et vidéos des stades de Ligue 1
Accueil de l'Euro 2016
Avatar de l’utilisateur
Joker
Full Member
Full Member
Messages : 168
Inscription : 01 nov. 2013, 10:57

Re: [Marseille] Stade Vélodrome (60,013>67,500)

Message non lu par Joker »

Piou04 a écrit :Petite question :

Quelqu'un saurait sortir les fonds d'écrans du site Arema sans les infos ou digitik ,juste les images .. j'ai essayé à partir des codes sources des pages ,mais punaise pas facile a trouver le bon lien .. Il y en a trop pour moi :greeen:

Parce qu'on voit pas mal de détails sur l'accès du parvis qu'on à jamais vu ici sur aucunes photos :P
A partir de cette page http://www.lenouveaustadevelodrome.com/infos-pratiques/
Et celle la http://www.digitick.com/ext/billetterie5/?site=arema

ça aiderait tous le monde à comprendre les détails du parvis JB ,surtout depuis qu'ils ont couler la dalle vendredi .On voit plusieurs détails qui ressemblent mais il faudrait viré ces trucs devant les fonds d'écran Arema :chant2:
Célony a écrit :Image

Image
ToToff13 a écrit :
En faisant comme je te dit, j'ai enregistré les images dans mon PC sans les annonces, je me sert de Firefox :

Image
Piou04 a écrit :Arrivée encore d'une méga poutre pour l'angle du parvis VN JB :perfect:

Merci pour les fonds d'écran j'ai vu les détails que je voulais ,je vais essayé de vous montrez les changements .. On pourra sans doute voir qu'il y aura pas d'habillage pour la façade de JB suite aux modifs qu'ils ont fait .... De même pour les escaliers qui on sans doute était modifiés par apport à la non construction du centre commercial ...De même pour la construction à gauche des escaliers de l'esplanade évitera de voir un grand vide sur la gauche !!!
Avatar de l’utilisateur
Piou04
Hero Member
Hero Member
Messages : 1029
Inscription : 05 avr. 2013, 07:15

Re: [Marseille] Stade Vélodrome (60,013>67,500)

Message non lu par Piou04 »

cissou13 a écrit :
Piou04 a écrit :
cissou13 a écrit :Image

quelqu'un sait pourquoi le béton est de couleur différente là?
c'est des plaques de contreplaqué marine pour coffret la dalle de béton ... Pour pas que le béton pousse derrière le contreplaqué on met des planches de 27 dans le sens de la hauteur ... :perfect:

Oups oui autant pour moi j'ai oublié la virgule mais ça reste une sommes quand même pour la ville et quand on voit les modifs du parvis ça va encore gonfler l'ardoise au 268 millions !
je ne parle pas des plaques (c'est vrai que ma flèche est mal placée), je parle de la couleur de la portion de dallage qui est plus foncée que les autres portions
C'est sans doute un béton avec un adjuvant plastifié ou suivant le dosage du ciment tu obtiens des couleurs différentes
Pourquoi ne pas être déçu quand on te montre que tu va montais dans une Rolls Royce et qu'au final tu vois que tu va t'asseoir dans la Renault Laguna du Bof ... la déception du Vélodrome c'est la même chose
cissou13
Jr. Member
Jr. Member
Messages : 68
Inscription : 25 avr. 2013, 14:05

Re: [Marseille] Stade Vélodrome (60,013>67,500)

Message non lu par cissou13 »

ça serait pas du béton quartzé?
Avatar de l’utilisateur
Piou04
Hero Member
Hero Member
Messages : 1029
Inscription : 05 avr. 2013, 07:15

Re: [Marseille] Stade Vélodrome (60,013>67,500)

Message non lu par Piou04 »

ça m'étonnerai c'est pas homogène partout la couleur :hum:

Pose d'une grande poutre à l'angle du parvis VN JB et arrivée d'une nouvelle mega poutre :perfect:
Pourquoi ne pas être déçu quand on te montre que tu va montais dans une Rolls Royce et qu'au final tu vois que tu va t'asseoir dans la Renault Laguna du Bof ... la déception du Vélodrome c'est la même chose
Avatar de l’utilisateur
outlawz
Full Member
Full Member
Messages : 114
Inscription : 29 janv. 2014, 23:01

Re: [Marseille] Stade Vélodrome (60,013>67,500)

Message non lu par outlawz »

sbeys a écrit :
CmOnStadeLePlusBo a écrit :
sbeys a écrit :Du béton avec un jeu de lumière et on peut faire des trucs sympas, comme au Mucem! :perfect:

Image

Image

Image

Image

C'est pas le même béton que la façade du Vélodrome, je ne sais pas si tu as remarqué ?
Non mais bien sur, mais une couche de peinture et on pourra jouer sur la même teinte de couleur...

Tout en ajoutant la rape à fromage et des lumières pour des effets scintillants, ou alors tout un bardage en béton comme au Mucem! ;)

Juste pour dire que c'est pas tant le béton le problème mais plutôt la volonté de ce qu'on veut en faire! :perfect:
Le même bardage que sur ces images ce serait pas mal !
Makaveli in this...
Killuminati.
All trough your body.
The blow's like a twelve gauge shotty.
Uhh, feel me!
Avatar de l’utilisateur
Piou04
Hero Member
Hero Member
Messages : 1029
Inscription : 05 avr. 2013, 07:15

Re: [Marseille] Stade Vélodrome (60,013>67,500)

Message non lu par Piou04 »

Bonjour ,

Les Allemands déjà sur le toit de JB mais encore trop de vent ce matin ,en plus il annonce des rafales à plus de 90 km/h :greeen:

Deux pompes à béton en action depuis 6 h ce matin parvis JB & Parvis Nord .Le revêtement de la dalle du parvis non ce poursuit .Et plusieurs acrobates dns la charpente JB :perfect:
Pourquoi ne pas être déçu quand on te montre que tu va montais dans une Rolls Royce et qu'au final tu vois que tu va t'asseoir dans la Renault Laguna du Bof ... la déception du Vélodrome c'est la même chose
nico13
Full Member
Full Member
Messages : 194
Inscription : 09 août 2013, 10:56

Re: [Marseille] Stade Vélodrome (60,013>67,500)

Message non lu par nico13 »

bonjour à tous
au milieu de tous ces messages je ne sais pas si on à dit ce que sont ces dalles posées sur le parvis coté virage nord
si quelqu'un a une idée merci
Avatar de l’utilisateur
Piou04
Hero Member
Hero Member
Messages : 1029
Inscription : 05 avr. 2013, 07:15

Re: [Marseille] Stade Vélodrome (60,013>67,500)

Message non lu par Piou04 »

nico13 a écrit :bonjour à tous
au milieu de tous ces messages je ne sais pas si on à dit ce que sont ces dalles posées sur le parvis coté virage nord
si quelqu'un a une idée merci
C'est pas des dalles mais des plaques d'étanchéité qu'il pose sur le revêtement qu'il applique avant .

Depuis ce matin ça travaille sur les ouvertures du 5 ieme niveau de JB ,on voit une sorte de filet blanc (au centre ) qui pend ,pose d'encadrements ou fenêtres :hum:
Pourquoi ne pas être déçu quand on te montre que tu va montais dans une Rolls Royce et qu'au final tu vois que tu va t'asseoir dans la Renault Laguna du Bof ... la déception du Vélodrome c'est la même chose
Avatar de l’utilisateur
Mercivelodrome2014
Hero Member
Hero Member
Messages : 1168
Inscription : 16 juin 2013, 16:39

Re: [Marseille] Stade Vélodrome (60,013>67,500)

Message non lu par Mercivelodrome2014 »

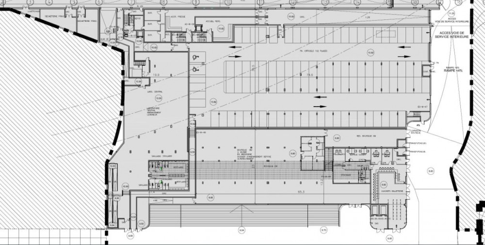
Je ne sais pas vous, mais j'ai vraiment un problème de parallaxe.
J'ai beau chercher la meilleure position possible, je ne comprends point ces banches/parois en diagonale, pile dans l'axe de passage du métro (gauche de G2).
Et pourquoi ?
Oui POUR-QUOI !!!! (scanderait P. Bellemare entre deux pubs).
Parce que sur les plans, les angles sont quasi tous droits, sauf le retour pour élargir le passage depuis le parvis Nord.
Je sais que mes chéris - et pour lesquels Pompon se découvre un attachement assez imprévu - mentionnent "aménagements ultérieurs", mais commême.
Si ma lanterne quelqu'un peut éclairer, je suis preneur car, certes il suffirait d'attendre, mais c'est si bon de comprendre où l'on va.
Capture.JPG
Capture1.JPG
PS : on notera que le coup de rabot donné à l'angle gauche du parvis n'est pas remis en cause à ce jour.
A part ça, c'est à l'intérieur des terres que l'on a des surprises.
Les piliers de la zone musée montent à bon rythme au milieu/fond à droite.
Vanitas vanitatum et omnes vanitas
patoche
Sr. Member
Sr. Member
Messages : 401
Inscription : 04 juil. 2012, 13:16
Localisation : gard

Re: [Marseille] Stade Vélodrome (60,013>67,500)

Message non lu par patoche »

Salut à tous
MV2014
Peut être que tout simplement les plans ne sont plus à jour :hum:
Rdv sur la page 1 ou sur la page 1170 du forum.
Avatar de l’utilisateur
pompon
Hero Member
Hero Member
Messages : 1523
Inscription : 09 oct. 2012, 13:24
Localisation : 50 m du Vel

Re: [Marseille] Stade Vélodrome (60,013>67,500)

Message non lu par pompon »

patoche a écrit :Salut à tous
MV2014
Peut être que tout simplement les plans ne sont plus à jour :hum:
salut,
oui ça ça semble incontestable :)

est ce que quelqu'un peut me dire, svp, ce que représentent ces petits rectangles que j'ai salement entourés là ?
Capture1.JPG
Lorsque tu fais quelque chose, sache que tu auras contre toi ceux qui voulaient faire la même chose, ceux qui voulaient faire le contraire, et l'immense majorité de ceux qui ne voulaient rien faire.
Confucius
LAuvergnat
Full Member
Full Member
Messages : 125
Inscription : 14 févr. 2014, 14:55

Re: [Marseille] Stade Vélodrome (60,013>67,500)

Message non lu par LAuvergnat »

Des piliers je suppose.

Sinon, il va y avoir du vent pendant combien encore de temps. Car, je sais que le temps ne presse pas mais je me réjouissais samedi de voir le stade presque terminé d'être couvert.
Dernière modification par LAuvergnat le 14 mai 2014, 12:55, modifié 1 fois.
Avatar de l’utilisateur
Def
Hero Member
Hero Member
Messages : 796
Inscription : 25 août 2011, 23:15

Re: [Marseille] Stade Vélodrome (60,013>67,500)

Message non lu par Def »

C'est pas les poteaux de soutiens comme on peut en voir dans tous les parkings par exemple?
Nouvelle Vidéo :)
--->https://vimeo.com/99353545<---
Avatar de l’utilisateur
Piou04
Hero Member
Hero Member
Messages : 1029
Inscription : 05 avr. 2013, 07:15

Re: [Marseille] Stade Vélodrome (60,013>67,500)

Message non lu par Piou04 »

Mercivelodrome2014 a écrit :Je ne sais pas vous, mais j'ai vraiment un problème de parallaxe.
J'ai beau chercher la meilleure position possible, je ne comprends point ces banches/parois en diagonale, pile dans l'axe de passage du métro (gauche de G2).
Et pourquoi ?
Oui POUR-QUOI !!!! (scanderait P. Bellemare entre deux pubs).
Parce que sur les plans, les angles sont quasi tous droits, sauf le retour pour élargir le passage depuis le parvis Nord.
Je sais que mes chéris - et pour lesquels Pompon se découvre un attachement assez imprévu - mentionnent "aménagements ultérieurs", mais commême.
Si ma lanterne quelqu'un peut éclairer, je suis preneur car, certes il suffirait d'attendre, mais c'est si bon de comprendre où l'on va.
Capture.JPG
Capture1.JPG
PS : on notera que le coup de rabot donné à l'angle gauche du parvis n'est pas remis en cause à ce jour.
A part ça, c'est à l'intérieur des terres que l'on a des surprises.
Les piliers de la zone musée montent à bon rythme au milieu/fond à droite.
Je dirai pour ma par que c'est l'accès aux bus des joueurs a l'abris des supporter contre toutes agressions .
Pour Pompon oui ça serait plutôt les piliers qui vont soutenir la dalle du parvis .
La ou on peu s'étonnait c'est les differentes hauteurs du mur linaire de la VSI entre le nord et le Sud pourquoi plus haut par endroit et plus bas ailleurs ...Coté Sud de JB il à l'air très bas le mur ,il y a presque 1 m d'écart de hauteur entre le sud et le nord :hum:
Pourquoi ne pas être déçu quand on te montre que tu va montais dans une Rolls Royce et qu'au final tu vois que tu va t'asseoir dans la Renault Laguna du Bof ... la déception du Vélodrome c'est la même chose
Avatar de l’utilisateur
outlawz
Full Member
Full Member
Messages : 114
Inscription : 29 janv. 2014, 23:01

Re: [Marseille] Stade Vélodrome (60,013>67,500)

Message non lu par outlawz »

Piou04 a écrit :Je dirai pour ma par que c'est l'accès aux bus des joueurs a l'abris des supporter contre toutes agressions .
Pour Pompon oui ça serait plutôt les piliers qui vont soutenir la dalle du parvis .
La ou on peu s'étonnait c'est les differentes hauteurs du mur linaire de la VSI entre le nord et le Sud pourquoi plus haut par endroit et plus bas ailleurs ...Coté Sud de JB il à l'air très bas le mur ,il y a presque 1 m d'écart de hauteur entre le sud et le nord :hum:
Il me semble que les cars des joueurs c'est sous le parvis VN non?
Makaveli in this...
Killuminati.
All trough your body.
The blow's like a twelve gauge shotty.
Uhh, feel me!
Répondre

Revenir à « Ligue 1 »