[Marseille] Stade Orange Vélodrome (67.354)

Informations, photos et vidéos des stades de Ligue 1
Accueil de l'Euro 2016
Répondre
Avatar de l’utilisateur
waddle71
Moderator
Moderator
Messages : 3942
Inscription : 09 oct. 2010, 11:24
Localisation : MACON (71) trop loin du Vélodrome !!!

Re: [Marseille] Stade Vélodrome (60,013>67,500)

Message non lu par waddle71 »

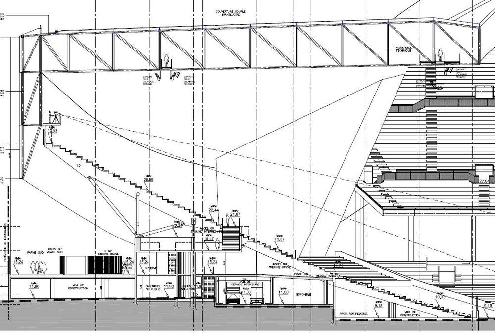
om7313 a écrit :quelqu'un a une idéé du futur emplacement des caméras pour les deux saisons a venir suite a la démolition de la tribune jean bouin ??
Oui regarde sur ce plan de Ganay tu verras au début de la partie haute, une plateforme caméra
coupe%20GAN.JPG
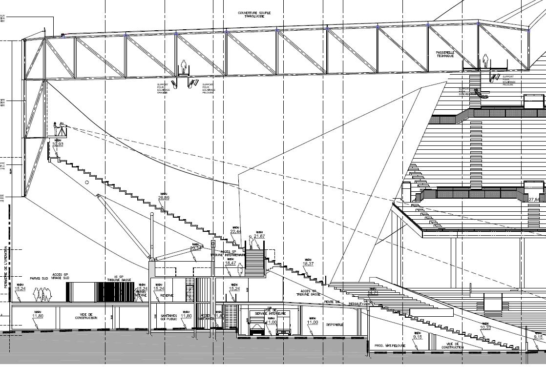
Et il y en a aussi tout en haut des virages
coupe.JPG
-------- Fiers d'être (supporter) marseillais --------- A jamais les premiers ------------
Avatar de l’utilisateur
waddle71
Moderator
Moderator
Messages : 3942
Inscription : 09 oct. 2010, 11:24
Localisation : MACON (71) trop loin du Vélodrome !!!

Re: [Marseille] Stade Vélodrome (60,013>67,500)

Message non lu par waddle71 »

Superbe purée de pois ce matin sur le vélodrome, on y voit rien du tout sur la webcam.

Mais ça va se lever dans la matinée enfin c'est ce qu'on espère.
-------- Fiers d'être (supporter) marseillais --------- A jamais les premiers ------------
Avatar de l’utilisateur
djaurel
Hero Member
Hero Member
Messages : 535
Inscription : 07 juil. 2011, 00:10
Localisation : Marseille
Contact :

Re: [Marseille] Stade Vélodrome (60,013>67,500)

Message non lu par djaurel »

waddle71 a écrit :
djaurel a écrit :Nouvelles photos sur le site d'AREMA :perfect: qui datent de mi-février :baad: . Toutes les photos concernent les entrailles du virage nord.
ea1974c15f.jpg
c9b31a948c.jpg
be8b0e3ce8.jpg
5666363078.jpg
5b3a170593.jpg
Merci Djaurel de nous avoir mis en ligne ces nouvelles photos du site off Arema ;)

Corrige moi si je me trompe mais je présume que ces photos nous montrent ce que seront les vestiaires des équipes pendant les 2 années à venir avec une petite pièce à mettre sur la 4ème photo pour dire que ce sera celui de l'OM :)
Effectivement waddle71, les 4 premières photos correspondent aux futurs vestiaires annexes qui vont être utilisés pour les 2 prochaines saisons. Quant à la 5ème photo, il s'agit du niveau où se trouveront les WC pour le grand public.
Compte-rendu et photos de la visite privée du chantier du 11/07/2013 à partir de la page 2420 !!!
Compte-rendu et photos de la visite privée du chantier du 10/12/2012 à partir de la page 1169 !!!

Toutes les photos et vidéos des travaux à retrouver sur http://www.facebook.com/pages/Stade-V%C ... 51?sk=wall.

Toutes les infos sur le projet et le chantier à retrouver sur http://www.arema-velodrome.com/.
Avatar de l’utilisateur
Absolut13
Moderator
Moderator
Messages : 2365
Inscription : 19 janv. 2012, 12:07
Localisation : Marseille 13008

Re: [Marseille] Stade Vélodrome (60,013>67,500)

Message non lu par Absolut13 »

waddle71 a écrit :Superbe purée de pois ce matin sur le vélodrome, on y voit rien du tout sur la webcam.

Mais ça va se lever dans la matinée enfin c'est ce qu'on espère.
Je confirme bien que c'est même sur une bonne partie de Marseille ...
Compte-rendu et photos de la visite privée du chantier du 11/07/2013 à partir de la page 2420 !!!

Compte-rendu et photos de la visite privée du chantier du 10/12/2012 à partir de la page 1170 !!!
Avatar de l’utilisateur
thepec
Hero Member
Hero Member
Messages : 2074
Inscription : 21 juin 2011, 15:42
Localisation : Antibes

Re: [Marseille] Stade Vélodrome (60,013>67,500)

Message non lu par thepec »

Ici près de Nice on a eu la même purée de pois, mais ça part tranquillement, le ciel bleu est de retour, ça ne devrait plus trop tarder près de Marseille! :)
Vevetux
Full Member
Full Member
Messages : 125
Inscription : 23 févr. 2012, 15:33

Re: [Marseille] Stade Vélodrome (60,013>67,500)

Message non lu par Vevetux »

om7313 a écrit :bonsoir a tous, super forum on apprend plein de chose et on peu suivre l'avancement des travaux c'est super merci beaucoup, le stade sera magnifique et l'ambiance énorme!!!!
juste un petit détails j'espere qu'il y aura un nouveau speaker capable de chauffer tous le peuple marseillais, ce qui nous manque actuellement
Effectivement, laisser le micro à un socios pour la compo de l'om et les buts comme à Milan serait une bonne idée. Après dédé fournel pourra toujours nous parler du reste et lire les publicités intersport :)
Avatar de l’utilisateur
waddle71
Moderator
Moderator
Messages : 3942
Inscription : 09 oct. 2010, 11:24
Localisation : MACON (71) trop loin du Vélodrome !!!

Re: [Marseille] Stade Vélodrome (60,013>67,500)

Message non lu par waddle71 »

djaurel a écrit :Effectivement waddle71, les 4 premières photos correspondent aux futurs vestiaires annexes qui vont être utilisés pour les 2 prochaines saisons. Quant à la 5ème photo, il s'agit du niveau où se trouveront les WC pour le grand public.
Salut Djaurel ;)

Merci pour cette confirmation. On commence à arriver à retranscrire les pièces par rapport aux plans et je te promets que c'est pas facile qd on ne connait pas aussi bien les lieux que vous autres habitants marseillais et habitués du Vélodrome :)
-------- Fiers d'être (supporter) marseillais --------- A jamais les premiers ------------
Avatar de l’utilisateur
Absolut13
Moderator
Moderator
Messages : 2365
Inscription : 19 janv. 2012, 12:07
Localisation : Marseille 13008

Re: [Marseille] Stade Vélodrome (60,013>67,500)

Message non lu par Absolut13 »

Bonjour tout le monde je viens de prendre contact avec la Personne qui prend les photos du stade sur Flickr
C'est un amateur lui aussi mais pas du tout Fan de Foot il ma dit qu'il pouvais mettre une photo par semaine mais pas plus sur sa page, a nous de suivre les mise a jour de sa page pour voir ce qu'il nous met a disposition.

Ps: ou se trouve la personne qui nous a pris des photos panoramique il y a pas si longtemps ? plus de nouvelle de lui ...
Compte-rendu et photos de la visite privée du chantier du 11/07/2013 à partir de la page 2420 !!!

Compte-rendu et photos de la visite privée du chantier du 10/12/2012 à partir de la page 1170 !!!
Avatar de l’utilisateur
Absolut13
Moderator
Moderator
Messages : 2365
Inscription : 19 janv. 2012, 12:07
Localisation : Marseille 13008

Re: [Marseille] Stade Vélodrome (60,013>67,500)

Message non lu par Absolut13 »

Bonjour tout le monde je viens de prendre contact avec la Personne qui prend les photos du stade sur Flickr
C'est un amateur lui aussi mais pas du tout Fan de Foot il ma dit qu'il pouvais mettre une photo par semaine mais pas plus sur sa page, a nous de suivre les mise a jour de sa page pour voir ce qu'il nous met a disposition.

Ps: ou se trouve la personne qui nous a pris des photos panoramique il y a pas si longtemps ? plus de nouvelle de lui ...
Compte-rendu et photos de la visite privée du chantier du 11/07/2013 à partir de la page 2420 !!!

Compte-rendu et photos de la visite privée du chantier du 10/12/2012 à partir de la page 1170 !!!
om7313
Newbie
Newbie
Messages : 7
Inscription : 12 mars 2012, 20:37

Re: [Marseille] Stade Vélodrome (60,013>67,500)

Message non lu par om7313 »

Vevetux a écrit :
om7313 a écrit :bonsoir a tous, super forum on apprend plein de chose et on peu suivre l'avancement des travaux c'est super merci beaucoup, le stade sera magnifique et l'ambiance énorme!!!!
juste un petit détails j'espere qu'il y aura un nouveau speaker capable de chauffer tous le peuple marseillais, ce qui nous manque actuellement
Effectivement, laisser le micro à un socios pour la compo de l'om et les buts comme à Milan serait une bonne idée. Après dédé fournel pourra toujours nous parler du reste et lire les publicités intersport :)
c'est sur quand tu voit dans les autres stade comme sa rend tu fait répéter 4 ou 5 fois le noms du joueur repris par tout un stade, sa serais encore plus magnifique a marseille. Pour profiter un maximum de ce nouveau stade, c'est un details qui peut faire la différence! En plus je pensse que les enceintes seront présente tout autour du stade, alors qu'actuellement il y en a que sur la tribune jean bouin donc il y a un sacré potentiel a développer...
Avatar de l’utilisateur
waddle71
Moderator
Moderator
Messages : 3942
Inscription : 09 oct. 2010, 11:24
Localisation : MACON (71) trop loin du Vélodrome !!!

Re: [Marseille] Stade Vélodrome (60,013>67,500)

Message non lu par waddle71 »

Je mets ce petit Gif animé pour que vous puissiez constatez malgré la purée de pois qu'ils ont posé des gradins côté sud
picasion.com_6ba5ab285f5c53c2f1ebe651d94b27f4.gif
picasion.com_6ba5ab285f5c53c2f1ebe651d94b27f4.gif (101.3 Kio) Consulté 2637 fois
-------- Fiers d'être (supporter) marseillais --------- A jamais les premiers ------------
Avatar de l’utilisateur
Fhazer
Jr. Member
Jr. Member
Messages : 79
Inscription : 16 déc. 2011, 21:31

Re: [Marseille] Stade Vélodrome (60,013>67,500)

Message non lu par Fhazer »

waddle71 a écrit :Je mets ce petit Gif animé pour que vous puissiez constatez malgré la purée de pois qu'ils ont posé des gradins côté sud
picasion.com_6ba5ab285f5c53c2f1ebe651d94b27f4.gif
Bien vu !!
Nouveaux gradins posés au sud...
Avatar de l’utilisateur
Absolut13
Moderator
Moderator
Messages : 2365
Inscription : 19 janv. 2012, 12:07
Localisation : Marseille 13008

Re: [Marseille] Stade Vélodrome (60,013>67,500)

Message non lu par Absolut13 »

Voila Quatre petite Photo en coup de vent ...
Pièces jointes
Vu Ganay le 15/03/12
Vu Ganay le 15/03/12
Vu Ganay le 15/03/12
Vu Ganay le 15/03/12
Vu Ganay le 15/03/12
Vu Ganay le 15/03/12
Vu Ganay le 15/03/12
Vu Ganay le 15/03/12
Compte-rendu et photos de la visite privée du chantier du 11/07/2013 à partir de la page 2420 !!!

Compte-rendu et photos de la visite privée du chantier du 10/12/2012 à partir de la page 1170 !!!
Avatar de l’utilisateur
Def
Hero Member
Hero Member
Messages : 796
Inscription : 25 août 2011, 23:15

Re: [Marseille] Stade Vélodrome (60,013>67,500)

Message non lu par Def »

Ah on a du se croiser presque ^^
IMGP7625.JPG
IMGP7626.JPG
IMGP7627.JPG
IMGP7628.JPG
IMGP7629.JPG
IMGP7618.JPG
IMGP7619.JPG
IMGP7620.JPG
IMGP7621.JPG
IMGP7622.JPG
IMGP7624.JPG
Nouvelle Vidéo :)
--->https://vimeo.com/99353545<---
Avatar de l’utilisateur
Absolut13
Moderator
Moderator
Messages : 2365
Inscription : 19 janv. 2012, 12:07
Localisation : Marseille 13008

Re: [Marseille] Stade Vélodrome (60,013>67,500)

Message non lu par Absolut13 »

[quote="Def"]Ah on a du se croiser presque ^^

C'est Clair pour la prochaine fois on gère cela comme il le faut ;)
Compte-rendu et photos de la visite privée du chantier du 11/07/2013 à partir de la page 2420 !!!

Compte-rendu et photos de la visite privée du chantier du 10/12/2012 à partir de la page 1170 !!!
Répondre

Revenir à « Ligue 1 »