Niveau des sièges ça n'a pas l'air d'avoir avancé.chrismyom a écrit :Jay_Tordjman
[Marseille] Stade Orange Vélodrome (67.354)
Re: [Marseille] Stade Vélodrome (60,013>67,500)
Makaveli in this...
Killuminati.
All trough your body.
The blow's like a twelve gauge shotty.
Uhh, feel me!
Killuminati.
All trough your body.
The blow's like a twelve gauge shotty.
Uhh, feel me!
- Mercivelodrome2014
- Hero Member

- Messages : 1168
- Inscription : 16 juin 2013, 16:39
Re: [Marseille] Stade Vélodrome (60,013>67,500)
On a les plans de masse depuis le début, à vrai dire aucune surprise même si pour le parvis Ouest des changements mineurs sont apparus.Sastrou a écrit : je pense que l'angle de la caméra joue également ... un des forumeurs a mis comme signature une photo de Jean Bouin vu de face et la partie ou se concentre les travaux semble bien plus grande que sur la cam, idem sur google earth/googlemap. Après ce n'est que mon avis.
Je ne me souviens pas qui avait parlé d'un parvis largement trois fois plus grand qu'au Nord.
Sur la velcam, on distingue la limite de l'escalier principal à droite, et on mesure mieux l'entrée par le Boulevard.
Et encore ... la velcam fausse la perception à la fois latérale et en profondeur.
Par contre, l'accès et donc la sortie massive des tribunes Nord et Sud - Sud on le voit de face, VN semble à peine plus large - est vraiment très réduit.
Certains d'entre nous regrettent la perte de perspective par la rentabilisation maximale des m² constructibles.
Perso, deux parvis Nord et Ouest aussi étendus et un passage riquiqui ne me semblent pas esthétiquement géniaux, faudra voir comment s'insèrera le centre commercial ... dans 3 ou 4 ans au mieux.
D'autres apprécient l'idée de "tomber" sur le Stade entre les constructions.
Vanitas vanitatum et omnes vanitas
- fougasse
- Hero Member

- Messages : 1203
- Inscription : 06 janv. 2013, 23:46
- Localisation : Pas-de-Calais (62126) à 11 heures de bus du Vél
Re: [Marseille] Stade Vélodrome (60,013>67,500)
Célony a écrit :mine de rien, ça va se jouer à peu samedi prochain, d'avoir JB entièrement couvert…
(si le même rythme est poursuivi, il n'en manquera que deux ou trois à chaque extrémité…)
Difficile à dire, il y a beaucoup de vent annoncé la semaine prochaine donc on verra bien si le rythme reste le même
Pour un vrai débat sur l'arbitrage vidéo !
Re: [Marseille] Stade Vélodrome (60,013>67,500)
Hâte de voir l'intérieur du stade avec le nouveau positionnement des caméras.
Re: [Marseille] Stade Vélodrome (60,013>67,500)
il faudra voir aussi le bas des lès dans les angles ,les lès descendront jusqu'en bas au niveau des passages sur le parvis ou si ils vont utilisés une autre matière de toile anti tags et anti déchirures ..Puisqu'on peu voir au niveau du virage Sud qu'ils ont pas descendu une lé jusqu'en basCélony a écrit :mine de rien, ça va se jouer à peu samedi prochain, d'avoir JB entièrement couvert…
(si le même rythme est poursuivi, il n'en manquera que deux ou trois à chaque extrémité…)
En tout cas il reste énormément de boulot que ce soit à l'intérieur ou extérieur d'ici l'ouverture du championnat .....
Pourquoi ne pas être déçu quand on te montre que tu va montais dans une Rolls Royce et qu'au final tu vois que tu va t'asseoir dans la Renault Laguna du Bof ... la déception du Vélodrome c'est la même chose
- santa2mars
- Jr. Member

- Messages : 90
- Inscription : 03 juin 2013, 13:40
Re: [Marseille] Stade Vélodrome (60,013>67,500)
Une petite question, les escaliers coté virage nord vont ils rester en place pour monter sur le parvis???
- santa2mars
- Jr. Member

- Messages : 90
- Inscription : 03 juin 2013, 13:40
Re: [Marseille] Stade Vélodrome (60,013>67,500)
Pour la semaine prochaine ils ont prévus de 50 à 70km/h de mistral, ça s'annonce mal pour la pose de la toile !!!
A moins qu'il puisse la poser avec ce vent ou très tôt le matin ....
Du coup je parierai sur 4 pans de toile posés pour la semaine prochaine ( 2 vendredi et 2 samedi ...) dommage...
Qu'en pensez vous ?
A moins qu'il puisse la poser avec ce vent ou très tôt le matin ....
Du coup je parierai sur 4 pans de toile posés pour la semaine prochaine ( 2 vendredi et 2 samedi ...) dommage...
Qu'en pensez vous ?
Re: [Marseille] Stade Vélodrome (60,013>67,500)
Bonjour à tous, je me réjouis de l’avancée des travaux de notre cher stade Vélodrome, j'ai hâte de le voir terminé,concernant les finitions du stade vu que beaucoup s'en inquiètent pourquoi ne pas peindre en blanc les poutre métalliques que l'on voit lorsque l'on est à l' intérieur du stade,si c'est logistiquement et techniquement possible sa pourrait améliorer considérablement l'esthétique générale du stade
Re: [Marseille] Stade Vélodrome (60,013>67,500)
en ce jour lumineux de Danone Cup, où le chantier se met peu à peu en veille — cette vidéo d'un tifo INCROYABLE à Copenhague — qui donne des idées
https://www.youtube.com/watch?v=mgYbzGT1E0w
https://www.youtube.com/watch?v=mgYbzGT1E0w
un jour ou l'autre
- Mercivelodrome2014
- Hero Member

- Messages : 1168
- Inscription : 16 juin 2013, 16:39
Re: [Marseille] Stade Vélodrome (60,013>67,500)
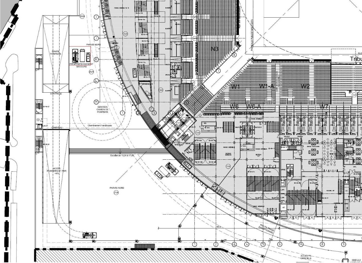
A priori non.santa2mars a écrit :Une petite question, les escaliers coté virage nord vont ils rester en place pour monter sur le parvis???
Les escaliers provisoires vont être recouverts par le parvis allant jusqu'à la grande traverse déjà en place (tout en haut du plan).
L'Allée Ray Grassi devrait servir au passage des véhicules pompiers, des bus visiteurs et au parking souterrain de la RTM, avec un accès pour les PRM.
Mais pas pour la masse des spectateurs/visiteurs : nous on passerait à l'Est par la parvis Ganay ou à l'Ouest par Michelet.
Sur le plan, les quelques escaliers et ascenseurs qui débouchent à droite seraient ceux du parking RTM tout en fond de piscine.
La zone visiteur étant totalement étanche, d'où la "bizarrerie" d'un parking bus au-dessus de véhicules légers.
@ Titi : choix architectural du métal, et charte graphique à base de blanc et noir - rappelons-nous de l'idée saugrenue à Marseille d'avoir des sièges noirs -
Plus le constat qu'en zone maritime la peinture ça ne le fait pas ou difficilement.
"Ils" ont dit aussi que la galvanisation coûtait plus cher mais tenait mieux.
Là aussi, certains aiment le style "Eiffel" d'autres non, mais c'est un choix délibéré.
Les architectes parmi nous, confirmeront sans doute qu'un bon projet doit plus donner matière à débat qu'emporter l'unanimité (cf la même tour Eiffel, Beaubourg).
La cité radieuse tout béton est devenue un lieu culte.
http://www.marseille-citeradieuse.org/c ... 42c677b47c
Dernière modification par Mercivelodrome2014 le 10 mai 2014, 12:30, modifié 2 fois.
Vanitas vanitatum et omnes vanitas
Re: [Marseille] Stade Vélodrome (60,013>67,500)
bonjour à tous, série 1
Lorsque tu fais quelque chose, sache que tu auras contre toi ceux qui voulaient faire la même chose, ceux qui voulaient faire le contraire, et l'immense majorité de ceux qui ne voulaient rien faire.
Confucius
Confucius
Re: [Marseille] Stade Vélodrome (60,013>67,500)
je n'ai pas fait attention au plan du parvis Ganay mais ce batiment est peut être une future billeterie non ?
nouvelle lé de jupe en cours de pose côté VS
nouvelle lé de jupe en cours de pose côté VS
Re: [Marseille] Stade Vélodrome (60,013>67,500)
série 2
Lorsque tu fais quelque chose, sache que tu auras contre toi ceux qui voulaient faire la même chose, ceux qui voulaient faire le contraire, et l'immense majorité de ceux qui ne voulaient rien faire.
Confucius
Confucius
Re: [Marseille] Stade Vélodrome (60,013>67,500)
série 3 et dernière
Lorsque tu fais quelque chose, sache que tu auras contre toi ceux qui voulaient faire la même chose, ceux qui voulaient faire le contraire, et l'immense majorité de ceux qui ne voulaient rien faire.
Confucius
Confucius
Re: [Marseille] Stade Vélodrome (60,013>67,500)
Merci Pompon, super reportage et magnifiques photos
1 lé de plus coté JB/VS et un autre en préparation coté VN.
1 lé de plus coté JB/VS et un autre en préparation coté VN.
