[Marseille] Stade Orange Vélodrome (67.354)

Informations, photos et vidéos des stades de Ligue 1
Accueil de l'Euro 2016
Avatar de l’utilisateur
pompon
Hero Member
Hero Member
Messages : 1523
Inscription : 09 oct. 2012, 13:24
Localisation : 50 m du Vel

Re: [Marseille] Stade Vélodrome (60,013>67,500)

Message non lu par pompon »

Absolut13 a écrit :
pompon a écrit :bon...je sais pas si on va le remplir ou pas mais en tout cas, ça faisait longtemps....
ça pète méchamment lorsque l'ambiance et le résultat sont au rdv

alors, l'intrigue du soir c'est ce truc encadré en rouge sur le colis de faille à l'angle VN/Ganay ; ma photo est pourrie, smartphone de pauvre, j'espère que Stéphane l'aura pris avec son appareil
2014-05-04 22.07.49.jpg
la deuxième c'est juste pour le plaisir :)
2014-05-04 20.59.01.jpg
Bonsoir mon ami,
J'ai vu ton ami de GFC ce soir :)
Pour ta question c'est le support sur le colis de faille ou il y avait le câble de pré-contrainte de la charpente.
Tu a le même qui part vers le VN a l'opposé.

Olivier.
,

damned....j'aurais pu y penser, ça m'a même pas effleuré, merci pour l'info
quant à mon ami, la prochaine fois qu'on boit l'apéro on l'invite et on le torture pour qu'il nous donne des infos !! :P
Lorsque tu fais quelque chose, sache que tu auras contre toi ceux qui voulaient faire la même chose, ceux qui voulaient faire le contraire, et l'immense majorité de ceux qui ne voulaient rien faire.
Confucius
Avatar de l’utilisateur
Stelea
Hero Member
Hero Member
Messages : 1198
Inscription : 27 nov. 2012, 12:48
Localisation : Aubagne

Re: [Marseille] Stade Vélodrome (60,013>67,500)

Message non lu par Stelea »

C'est bientôt la fin de la piscine...
IMG_2817.JPG
IMG_2818.JPG
IMG_2820.JPG
IMG_2821.JPG
IMG_2822.JPG
IMG_2823.JPG
IMG_2824.JPG
IMG_2825.JPG
Et une dernière spéciale MV14 :wink2:
IMG_2826.JPG
Avatar de l’utilisateur
Stelea
Hero Member
Hero Member
Messages : 1198
Inscription : 27 nov. 2012, 12:48
Localisation : Aubagne

Re: [Marseille] Stade Vélodrome (60,013>67,500)

Message non lu par Stelea »

JB dans toute sa splendeur.
Toutes les passerelles techniques ont été posées
IMG_2830.JPG
IMG_2829.JPG
La pose des sièges a effectivement commencée :perfect:
IMG_2832.JPG
IMG_2831.JPG
Spots
IMG_2833.JPG
Avatar de l’utilisateur
Stelea
Hero Member
Hero Member
Messages : 1198
Inscription : 27 nov. 2012, 12:48
Localisation : Aubagne

Re: [Marseille] Stade Vélodrome (60,013>67,500)

Message non lu par Stelea »

Et Enfin...
Matériel pour tendre les pans de toiles de toit
IMG_2836.JPG
IMG_2835.JPG
Il reste les socles de palées centrale
IMG_2834.JPG
Côté Nord, quelques trous dans JB, mais les gradins prennent formes
IMG_2837.JPG
C'est tout pour aujourd'hui.
A+ :wink2:

Ici Aubagne... A vous Aix en Provence pour les commentaires ;D
Avatar de l’utilisateur
Mercivelodrome2014
Hero Member
Hero Member
Messages : 1168
Inscription : 16 juin 2013, 16:39

Re: [Marseille] Stade Vélodrome (60,013>67,500)

Message non lu par Mercivelodrome2014 »

Stelea a écrit : Ici Aubagne... A vous Aix en Provence pour les commentaires ;D
Effectivement l'apéro avec balcon sur le parvis fut plus qu'agréable ;D
Pompon et sa douce sont des chefs, si votre pote de GFC veut accepter l'invitation, j'amène le champagne.
J'ai compris pourquoi Stelea n'a pas voulu partager une dernière bière.
Personne ne peut imaginer les dangers encourus sur le mont des Oliviers, juste pour vous ramener des images de Gogol.
Le floutage est pourri mais il le fallait bien pour ne pas le faire malusser par sa compagnie d'assurance.
:super: :super: :super:
stelea3.jpg
Pour le reste, pelouse superbe malgré le Rugby et un public prêt à s'enflammer, sauf peut-être les ultras qui d'en face avaient l'air bien calmes.
Les tendeurs de toile, demandent à être déplacés avant de déployer les pans à venir.
Je n'ai pas tout compris aux explications de l'autre jour, mais ce sont bien des sortes de contreplaqués qui supportent le coulage à venir des dalles.
Merci pour les infos rassurantes sur la vue d'en haut de Ganay, la station debout en virages m'est de plus en plus pénible.
Avec un stade aussi beau, les tarifs pratiqués et les promesses liées à l'arrivée du fada, Figoress risque d'être surpris : on aura sans doute plus d'abonnés que le maximum de jauge de n'importe quel stade de Ligue1 en France.
Dernière modification par Mercivelodrome2014 le 05 mai 2014, 01:23, modifié 5 fois.
Vanitas vanitatum et omnes vanitas
Avatar de l’utilisateur
sup
Sr. Member
Sr. Member
Messages : 391
Inscription : 17 août 2013, 20:34

Re: [Marseille] Stade Vélodrome (60,013>67,500)

Message non lu par sup »

Merci pour les photos :gooood:
Avatar de l’utilisateur
Mercivelodrome2014
Hero Member
Hero Member
Messages : 1168
Inscription : 16 juin 2013, 16:39

Re: [Marseille] Stade Vélodrome (60,013>67,500)

Message non lu par Mercivelodrome2014 »

sup a écrit :Merci pour les photos :gooood:
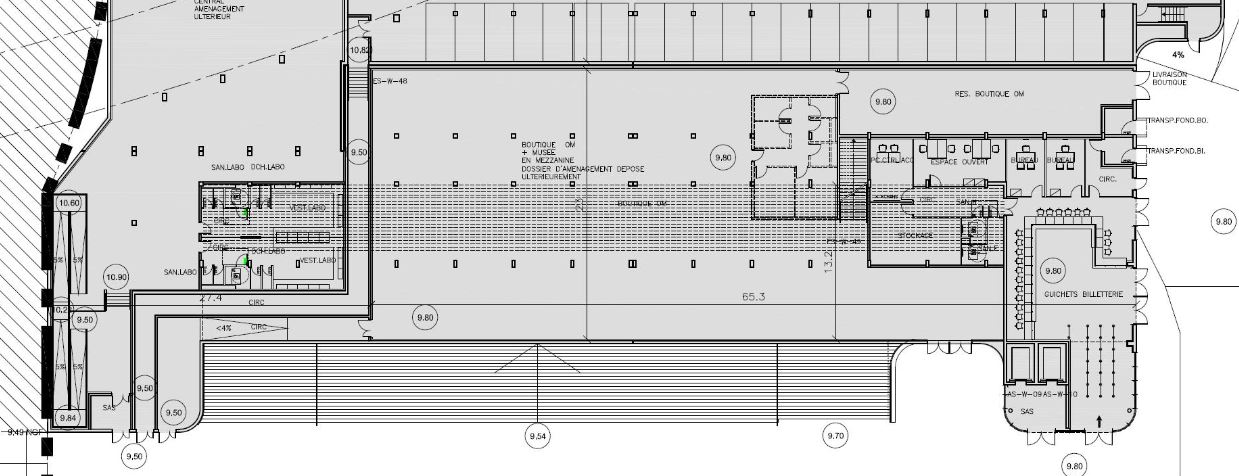
Vite dit, car deux me laissent sur des interrogations :
- A droite, le donjon est comme sur le plan --> en avancée
Image
- A gauche, on voit bien les trois portes d'accès mais c'est dans le prolongement du mur // au boulevard Michelet : apparemment, pas d'avancée.
Tout au moins à ce stade des travaux.
Ce truc me laisse perplexe depuis des jours ; ça va viendre ou jouent-ils l'asymétrie des donjons ?
Image

Le plan (ça vous manquait hein :) ) :
Capture.JPG
Vanitas vanitatum et omnes vanitas
Avatar de l’utilisateur
pierda
Sr. Member
Sr. Member
Messages : 339
Inscription : 22 janv. 2013, 11:29
Localisation : Expatrié à Montpellier

Re: [Marseille] Stade Vélodrome (60,013>67,500)

Message non lu par pierda »

Troisième pan de toile tendu côté VS :perfect:
A vaincre sans péril, on triomphe sans gloire
Avatar de l’utilisateur
zangetsu2230
Hero Member
Hero Member
Messages : 654
Inscription : 28 mars 2012, 17:34
Localisation : Nîmes

Re: [Marseille] Stade Vélodrome (60,013>67,500)

Message non lu par zangetsu2230 »

Hello!

Merci pour toutes ces photos! :super:

3 éme pan de toile posé et les lés vont débutés.
Pièces jointes
velodrome_jb4.jpg
L’OM ça n'est pas les Harlem Globes trotter, du beau jeu!? Des victoires, des titres d'abord!!!!!
Une dizaine de points d'avance en décembre éjecté du podium aujourd'hui!? Éliminé au 1 er tour des coupes notamment face... à Grenoble (CFA).
Elle est ou la bonne saison!?

La Blonde Labrune et le truand pour continuer à améliorer d'avantage l'image de ce club....
Je veux pas que mon club devienne le Liverpool Français....
Un mythe dépassé au niveau national, inexistant en Europe...
Avatar de l’utilisateur
El burro Azul
Hero Member
Hero Member
Messages : 1027
Inscription : 31 oct. 2012, 08:57
Localisation : On m'a vu dans le vercors.........sauter à l'élastique.

Re: [Marseille] Stade Vélodrome (60,013>67,500)

Message non lu par El burro Azul »

pompon a écrit :bon...je sais pas si on va le remplir ou pas mais en tout cas, ça faisait longtemps....
ça pète méchamment lorsque l'ambiance et le résultat sont au rdv

alors, l'intrigue du soir c'est ce truc encadré en rouge sur le colis de faille à l'angle VN/Ganay ; ma photo est pourrie, smartphone de pauvre, j'espère que Stéphane l'aura pris avec son appareil
2014-05-04 22.07.49.jpg
la deuxième c'est juste pour le plaisir :)
2014-05-04 20.59.01.jpg
Le support pour le futur écran géant??
El loco Bielsa aux journaleux de France et de Navarre...
" les grands leaders parlent peu, il vaut mieux ça que de parler pour rien dire ; d'ailleurs ça fait 45 minutes qu'on parle et qu'on ne dit rien...."
Sébastien Patoche
Full Member
Full Member
Messages : 127
Inscription : 04 déc. 2013, 11:06

Re: [Marseille] Stade Vélodrome (60,013>67,500)

Message non lu par Sébastien Patoche »

4ème lé de jupe :

Image
Avatar de l’utilisateur
Stelea
Hero Member
Hero Member
Messages : 1198
Inscription : 27 nov. 2012, 12:48
Localisation : Aubagne

Re: [Marseille] Stade Vélodrome (60,013>67,500)

Message non lu par Stelea »

Sébastien Patoche a écrit :4ème lé de jupe :

Image
Bien triste tout ça....
Les photos d'hier soir avec 2 pans de toile et 3 lés sont déjà obsolètes :D :expdr:

Et c'est reparti pour une semaine ou les avancées visuelles vont être importantes. :gooood:
On va en prendre plein les yeux 8)
Avatar de l’utilisateur
Stelea
Hero Member
Hero Member
Messages : 1198
Inscription : 27 nov. 2012, 12:48
Localisation : Aubagne

Re: [Marseille] Stade Vélodrome (60,013>67,500)

Message non lu par Stelea »

Mercivelodrome2014 a écrit :
sup a écrit :Merci pour les photos :gooood:
Vite dit, car deux me laissent sur des interrogations :
- A droite, le donjon est comme sur le plan --> en avancée
Image
- A gauche, on voit bien les trois portes d'accès mais c'est dans le prolongement du mur // au boulevard Michelet : apparemment, pas d'avancée.
Tout au moins à ce stade des travaux.
Ce truc me laisse perplexe depuis des jours ; ça va viendre ou jouent-ils l'asymétrie des donjons ?
Image

Le plan (ça vous manquait hein :) ) :
La pièce jointe « Capture.JPG » n’est plus disponible
Oh le Pierre, faut arrêter de picoler aux apéros :expdr:
Je comprenais pas ton soucis d'avancées pas symétrique. Ton problème c'est pas l'avancée, c'est le renforcement qu'il y a côté VS et qu'il n'y a pas côté VN.
En traçant un petit coup de cordex tout est aligné.
Avancées JB.jpg
Avancées JB.jpg (128.01 Kio) Consulté 3436 fois
Edit : Euh... je crois que c'est moi qui ai trop bu. Le boc côté gauche devrait être un peu plus avancé et non pas dans la lignée des murs.
A moins qu'il manque un bloc qui sera inséré devant :hum:
Faut que t'arrête de nous embrouiller un lundi matin :hihihihi:
Dernière modification par Stelea le 05 mai 2014, 08:50, modifié 1 fois.
Dsc84
Sr. Member
Sr. Member
Messages : 332
Inscription : 19 déc. 2011, 20:54

Re: [Marseille] Stade Vélodrome (60,013>67,500)

Message non lu par Dsc84 »

Bonjour,

Voici la 1ere série de photos prisent hier lors du match OM-Lyon (04/05/2014) :

Image

Image

Image

Image

Image


Image

Image

Image

Image

Image


- - - - - - - -
Toutes les photos (en meilleure résolution) sont disponibles sur : http://www.hostingpics.net/album/Dsc84-79833.html
Dsc84
Sr. Member
Sr. Member
Messages : 332
Inscription : 19 déc. 2011, 20:54

Re: [Marseille] Stade Vélodrome (60,013>67,500)

Message non lu par Dsc84 »

Série n°2 :

Image

Image

Image

Image

Image

Image

Image

Image

Image

Image


- - - - - - - -
Toutes les photos (en meilleure résolution) sont disponibles sur : http://www.hostingpics.net/album/Dsc84-79833.html
Répondre

Revenir à « Ligue 1 »